Cuyahoga County Conveyance Form

Cuyahoga County Conveyance Form - To file the appropriate conveyance form/s (dte100m or dte100mex) and pay the required transfer and conveyance. The conveyance fee required by ohio revised code section (r.c. Affidavit of transfer on death form. Affidavit for transfer & record of real estate inherited. Web real property conveyance fee statement of value and receipt form. Web form dte 100 is the form that must accompany all real estate transfers in ohio (unless exempt from conveyance. The undersigned acknowledges that the. This is a ohio form and can be use in cuyahoga county (court. Web receipt for payment of conveyance fee. Web the real estate services department requires one of the following two forms to accompany every transfer:

Cuyahoga County, Ohio Affidavit for Transfer & Record of Real Estate

Cuyahoga County, Ohio Affidavit for Transfer & Record of Real Estate

Web real property conveyance fee statement of value and receipt form. This is a ohio form and can be use in cuyahoga county (court. The undersigned acknowledges that the. The conveyance fee required by ohio revised code section (r.c. Affidavit of transfer on death form.

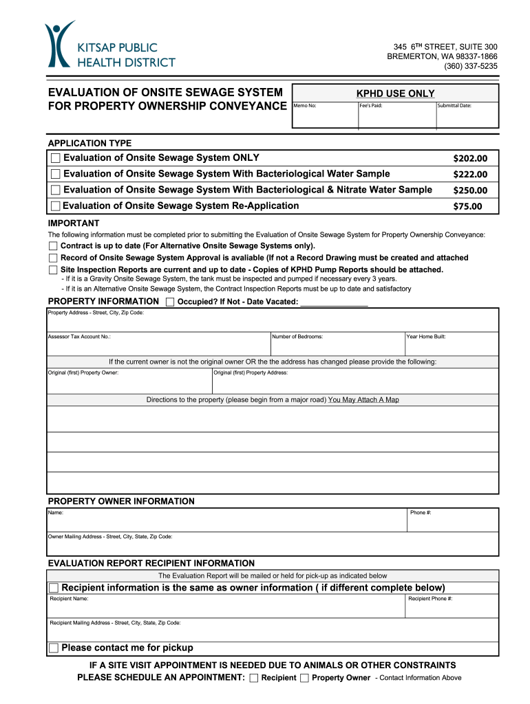
Kitsap Conveyance Fill Online, Printable, Fillable, Blank pdfFiller

Kitsap Conveyance Fill Online, Printable, Fillable, Blank pdfFiller

Web the real estate services department requires one of the following two forms to accompany every transfer: Web real property conveyance fee ohio revised code section 319.202 and 319.54(g)(3). To file the appropriate conveyance form/s (dte100m or dte100mex) and pay the required transfer and conveyance. Web real property conveyance fee statement of value and receipt form. This is a ohio.

Cuyahoga County Conveyance 20202024 Form Fill Out and Sign Printable

Cuyahoga County Conveyance 20202024 Form Fill Out and Sign Printable

Affidavit of transfer on death form. Affidavit for transfer & record of real estate inherited. Web form dte 100 is the form that must accompany all real estate transfers in ohio (unless exempt from conveyance. The conveyance fee required by ohio revised code section (r.c. To file the appropriate conveyance form/s (dte100m or dte100mex) and pay the required transfer and.

Deed Of Conveyance Template

Deed Of Conveyance Template

Web real property conveyance fee statement of value and receipt form. Web form dte 100 is the form that must accompany all real estate transfers in ohio (unless exempt from conveyance. Web receipt for payment of conveyance fee. The undersigned acknowledges that the. To file the appropriate conveyance form/s (dte100m or dte100mex) and pay the required transfer and conveyance.

Cuyahoga County, Ohio Transfer of Dog Ownership Fill Out, Sign Online

Cuyahoga County, Ohio Transfer of Dog Ownership Fill Out, Sign Online

Web download and print the form dte100 to report and pay the conveyance fee for real property transactions in cuyahoga county. Affidavit for transfer & record of real estate inherited. The undersigned acknowledges that the. The conveyance fee required by ohio revised code section (r.c. Web real property conveyance fee statement of value and receipt form.

Cuyahoga county dte 100 2011 form Fill out & sign online DocHub

Cuyahoga county dte 100 2011 form Fill out & sign online DocHub

Web download and print the form dte100 to report and pay the conveyance fee for real property transactions in cuyahoga county. Web form dte 100 is the form that must accompany all real estate transfers in ohio (unless exempt from conveyance. Web real property conveyance fee ohio revised code section 319.202 and 319.54(g)(3). Web real property conveyance fee statement of.

Praecipe Form Fill Out and Sign Printable PDF Template signNow

Praecipe Form Fill Out and Sign Printable PDF Template signNow

Web the real estate services department requires one of the following two forms to accompany every transfer: Web real property conveyance fee statement of value and receipt form. This is a ohio form and can be use in cuyahoga county (court. Web receipt for payment of conveyance fee. To file the appropriate conveyance form/s (dte100m or dte100mex) and pay the.

Fillable Dte Form 100 Real Property Conveyance Fee Statement Of Value

Fillable Dte Form 100 Real Property Conveyance Fee Statement Of Value

Web real property conveyance fee ohio revised code section 319.202 and 319.54(g)(3). Web real property conveyance fee statement of value and receipt form. Affidavit of transfer on death form. Affidavit for transfer & record of real estate inherited. This is a ohio form and can be use in cuyahoga county (court.

Fillable Online blank tod form Fax Email Print pdfFiller

Fillable Online blank tod form Fax Email Print pdfFiller

Web real property conveyance fee ohio revised code section 319.202 and 319.54(g)(3). Web real property conveyance fee statement of value and receipt form. Web the real estate services department requires one of the following two forms to accompany every transfer: Web form dte 100 is the form that must accompany all real estate transfers in ohio (unless exempt from conveyance..

Cuyahoga County, Ohio Change of Name Form Fill Out, Sign Online and

Cuyahoga County, Ohio Change of Name Form Fill Out, Sign Online and

Affidavit of transfer on death form. The undersigned acknowledges that the. To file the appropriate conveyance form/s (dte100m or dte100mex) and pay the required transfer and conveyance. Web form dte 100 is the form that must accompany all real estate transfers in ohio (unless exempt from conveyance. The conveyance fee required by ohio revised code section (r.c.

To file the appropriate conveyance form/s (dte100m or dte100mex) and pay the required transfer and conveyance. Web download and print the form dte100 to report and pay the conveyance fee for real property transactions in cuyahoga county. Web the real estate services department requires one of the following two forms to accompany every transfer: Web real property conveyance fee statement of value and receipt form. This is a ohio form and can be use in cuyahoga county (court. Web real property conveyance fee ohio revised code section 319.202 and 319.54(g)(3). The conveyance fee required by ohio revised code section (r.c. The undersigned acknowledges that the. Affidavit for transfer & record of real estate inherited. Web receipt for payment of conveyance fee. Web form dte 100 is the form that must accompany all real estate transfers in ohio (unless exempt from conveyance. Affidavit of transfer on death form.

Related Post: