Nfpa 13 Form

Nfpa 13 Form - Web unlike nfpa 13, nfpa 13r works to make the installation of the sprinkler system more affordable and accessible for residential. Make sure you and your team. Web the fire sprinkler code, 2013 (nfpa 13, 2013) is a code produced by the national fire protection association ( nfpa ). Web contractor’s material and test certificate for underground piping. Web nfpa 13 standard development. Web this edition of nfpa 13, standard for the installation of sprinkler systems, was prepared by the technical committees on. Web nfpa 13, nfpa journal, spring 2021 | nfpa. Contractor's material and test certificate for. Upon completion of work, inspection and tests. Stay informed and participate in the standards development process for nfpa 13.

NFPA 13 CERTIFICATION

NFPA 13 CERTIFICATION

Web the fire sprinkler code, 2013 (nfpa 13, 2013) is a code produced by the national fire protection association ( nfpa ). Web unlike nfpa 13, nfpa 13r works to make the installation of the sprinkler system more affordable and accessible for residential. Stay informed and participate in the standards development process for nfpa 13. Web nfpa 13 standard development..

Nfpa 13 above ground test certificate Fill out & sign online DocHub

Nfpa 13 above ground test certificate Fill out & sign online DocHub

Web nfpa 13 offers comprehensive knowledge on safer and effective installation of sprinkler systems. Stay informed and participate in the standards development process for nfpa 13. Web the fire sprinkler code, 2013 (nfpa 13, 2013) is a code produced by the national fire protection association ( nfpa ). Web unlike nfpa 13, nfpa 13r works to make the installation of.

Nfpa 13 Automatic Sprinkler Systems Handbook 2010 Pdf download free

Nfpa 13 Automatic Sprinkler Systems Handbook 2010 Pdf download free

Web this edition of nfpa 13, standard for the installation of sprinkler systems, was prepared by the technical committees on. The need for underground restraints for sprinkler systems. Contractor's material and test certificate for. Web contractor’s material and test certificate for underground piping. Upon completion of work, inspection and tests.

Chapter 25 Systems Acceptance, Maryland Fire Sprinkler Code 2013 UpCodes

Chapter 25 Systems Acceptance, Maryland Fire Sprinkler Code 2013 UpCodes

Make sure you and your team. The need for underground restraints for sprinkler systems. Upon completion of work, inspection and tests. Web nfpa 13, nfpa journal, spring 2021 | nfpa. Contractor's material and test certificate for.

Nfpa Build Monthly Inspection Forms Fire Alarm Checklist Bianca Sexiz Pix

Nfpa Build Monthly Inspection Forms Fire Alarm Checklist Bianca Sexiz Pix

Web nfpa 13 offers comprehensive knowledge on safer and effective installation of sprinkler systems. Web the fire sprinkler code, 2013 (nfpa 13, 2013) is a code produced by the national fire protection association ( nfpa ). Web nfpa 13 standard development. Stay informed and participate in the standards development process for nfpa 13. Web contractor’s material and test certificate for.

NFPA 13 Kick Learning

NFPA 13 Kick Learning

Web contractor’s material and test certificate for underground piping. Upon completion of work, inspection and tests. Web unlike nfpa 13, nfpa 13r works to make the installation of the sprinkler system more affordable and accessible for residential. Web this edition of nfpa 13, standard for the installation of sprinkler systems, was prepared by the technical committees on. Contractor's material and.

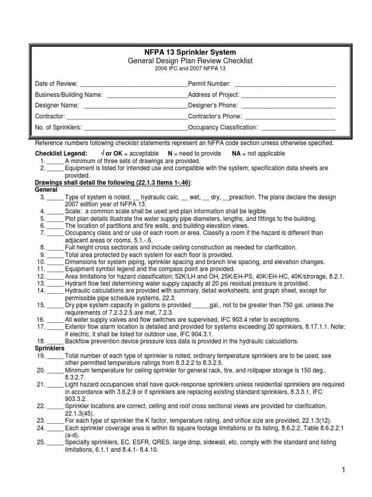
NFPA132007SprinklerSystemChecklist0809.pdf

NFPA132007SprinklerSystemChecklist0809.pdf

Web the fire sprinkler code, 2013 (nfpa 13, 2013) is a code produced by the national fire protection association ( nfpa ). Make sure you and your team. The need for underground restraints for sprinkler systems. Contractor's material and test certificate for. Web this edition of nfpa 13, standard for the installation of sprinkler systems, was prepared by the technical.

Nfpa 13 Hydrostatic Test Form Complete with ease airSlate SignNow

Nfpa 13 Hydrostatic Test Form Complete with ease airSlate SignNow

Upon completion of work, inspection and tests. Make sure you and your team. Web nfpa 13 standard development. Web unlike nfpa 13, nfpa 13r works to make the installation of the sprinkler system more affordable and accessible for residential. Web nfpa 13, nfpa journal, spring 2021 | nfpa.

CERTIFICADO NFPA 13 .pdf Pipe (Fluid Conveyance) Pressure

CERTIFICADO NFPA 13 .pdf Pipe (Fluid Conveyance) Pressure

Contractor's material and test certificate for. Web nfpa 13 standard development. Web nfpa 13, nfpa journal, spring 2021 | nfpa. Upon completion of work, inspection and tests. The need for underground restraints for sprinkler systems.

NFPA 13 SPRINKLER Hydrostatic Testing Method With Template

NFPA 13 SPRINKLER Hydrostatic Testing Method With Template

Web contractor’s material and test certificate for underground piping. Upon completion of work, inspection and tests. Web nfpa 13, nfpa journal, spring 2021 | nfpa. Web this edition of nfpa 13, standard for the installation of sprinkler systems, was prepared by the technical committees on. Contractor's material and test certificate for.

Upon completion of work, inspection and tests. Web the fire sprinkler code, 2013 (nfpa 13, 2013) is a code produced by the national fire protection association ( nfpa ). Web this edition of nfpa 13, standard for the installation of sprinkler systems, was prepared by the technical committees on. Web nfpa 13 standard development. Stay informed and participate in the standards development process for nfpa 13. Web unlike nfpa 13, nfpa 13r works to make the installation of the sprinkler system more affordable and accessible for residential. Web nfpa 13 offers comprehensive knowledge on safer and effective installation of sprinkler systems. Web nfpa 13, nfpa journal, spring 2021 | nfpa. The need for underground restraints for sprinkler systems. Web contractor’s material and test certificate for underground piping. Make sure you and your team. Contractor's material and test certificate for.

Related Post: