Rigging Inspection Form

Rigging Inspection Form - Customise and store your checklists. Web use this template to conduct rigging equipment inspections with ease and safety. Web rig check monthly inspection forms: Web a rigging equipment inspection template is a standardized document used to assess the condition and safety of rigging equipment. Web a rigging inspection checklist guides supervisors and workers in ensuring the safety of the equipment they are using. Web rigging equipment inspection report month marking/color code area crew instructions: Only persons who are trained. Web these inspection forms will assist you with the continual care, maintenance and compliance of your rigging equipment:. Web download a free form to inspect rigging equipment such as steel chain slings, wire rope slings, wire mesh slings, and id lifting.

Rigging Equipment Inspection Forms KPA Flex

Rigging Equipment Inspection Forms KPA Flex

Web rig check monthly inspection forms: Web a rigging inspection checklist guides supervisors and workers in ensuring the safety of the equipment they are using. Only persons who are trained. Customise and store your checklists. Web rigging equipment inspection report month marking/color code area crew instructions:

The Crowley Advisor Crowley's Yacht Yard Standing Rigging Inspection Form

The Crowley Advisor Crowley's Yacht Yard Standing Rigging Inspection Form

Web a rigging inspection checklist guides supervisors and workers in ensuring the safety of the equipment they are using. Web use this template to conduct rigging equipment inspections with ease and safety. Web these inspection forms will assist you with the continual care, maintenance and compliance of your rigging equipment:. Only persons who are trained. Web download a free form.

Rigging Inspection Form Checklist Joyfill

Rigging Inspection Form Checklist Joyfill

Web use this template to conduct rigging equipment inspections with ease and safety. Web a rigging inspection checklist guides supervisors and workers in ensuring the safety of the equipment they are using. Web a rigging equipment inspection template is a standardized document used to assess the condition and safety of rigging equipment. Web these inspection forms will assist you with.

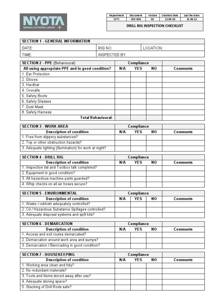
Inspection Checklist Drill Rig

Inspection Checklist Drill Rig

Web these inspection forms will assist you with the continual care, maintenance and compliance of your rigging equipment:. Web a rigging equipment inspection template is a standardized document used to assess the condition and safety of rigging equipment. Web rigging equipment inspection report month marking/color code area crew instructions: Web rig check monthly inspection forms: Web download a free form.

Rigging Inspection 20092024 Form Fill Out and Sign Printable PDF

Rigging Inspection 20092024 Form Fill Out and Sign Printable PDF

Web these inspection forms will assist you with the continual care, maintenance and compliance of your rigging equipment:. Web use this template to conduct rigging equipment inspections with ease and safety. Web a rigging inspection checklist guides supervisors and workers in ensuring the safety of the equipment they are using. Only persons who are trained. Customise and store your checklists.

Rigging Equipment Inspection Form

Rigging Equipment Inspection Form

Only persons who are trained. Web a rigging equipment inspection template is a standardized document used to assess the condition and safety of rigging equipment. Web use this template to conduct rigging equipment inspections with ease and safety. Web rig check monthly inspection forms: Web download a free form to inspect rigging equipment such as steel chain slings, wire rope.

Drilling Rig Inspection Checklist (Free and editable template)

Drilling Rig Inspection Checklist (Free and editable template)

Customise and store your checklists. Only persons who are trained. Web a rigging inspection checklist guides supervisors and workers in ensuring the safety of the equipment they are using. Web rig check monthly inspection forms: Web use this template to conduct rigging equipment inspections with ease and safety.

Drilling Rig Inspection Checklist (Free and editable template)

Drilling Rig Inspection Checklist (Free and editable template)

Only persons who are trained. Web a rigging equipment inspection template is a standardized document used to assess the condition and safety of rigging equipment. Web these inspection forms will assist you with the continual care, maintenance and compliance of your rigging equipment:. Web rigging equipment inspection report month marking/color code area crew instructions: Customise and store your checklists.

Rigging Inspection Form Fill Out And Sign Printable Pdf Template Images

Rigging Inspection Form Fill Out And Sign Printable Pdf Template Images

Web a rigging inspection checklist guides supervisors and workers in ensuring the safety of the equipment they are using. Web rig check monthly inspection forms: Only persons who are trained. Web use this template to conduct rigging equipment inspections with ease and safety. Web download a free form to inspect rigging equipment such as steel chain slings, wire rope slings,.

What to Expect at a Crane & Rigging Inspection Crane Operator School

What to Expect at a Crane & Rigging Inspection Crane Operator School

Web use this template to conduct rigging equipment inspections with ease and safety. Web rigging equipment inspection report month marking/color code area crew instructions: Only persons who are trained. Customise and store your checklists. Web download a free form to inspect rigging equipment such as steel chain slings, wire rope slings, wire mesh slings, and id lifting.

Web rigging equipment inspection report month marking/color code area crew instructions: Web a rigging equipment inspection template is a standardized document used to assess the condition and safety of rigging equipment. Web a rigging inspection checklist guides supervisors and workers in ensuring the safety of the equipment they are using. Only persons who are trained. Customise and store your checklists. Web download a free form to inspect rigging equipment such as steel chain slings, wire rope slings, wire mesh slings, and id lifting. Web these inspection forms will assist you with the continual care, maintenance and compliance of your rigging equipment:. Web rig check monthly inspection forms: Web use this template to conduct rigging equipment inspections with ease and safety.

Related Post: