Rta Qld Form 13

Rta Qld Form 13 - Notice to end a tenancy must be in writing. Web the notice of intention to leave (form 13) is used when the tenant/s are giving notice to the lessor/agent that they wish to vacate the premises by a certain date. There may be a number of grounds (reasons) for giving the notice. Level 23, 179 turbot street | gpo box 390 brisbane q 4001 | t 1300 366 311 | rta.qld.gov.au. There may be a number of grounds (reasons) for giving the notice. Go to 5 go to 6 residential tenancies and rooming accommodation act 2008 tenant/s. There may be a number of grounds (reasons) for giving the notice. Web 13 rows the notice of intention to leave (form 13) is used when the tenant/s are giving notice to the lessor/agent that they wish to vacate the premises by a certain date. Level 23, 179 turbot street | gpo box 390 brisbane q 4001 | t 1300 366 311 | rta.qld.gov.au v14 apr20 Web you may apply for termination of your lease through the queensland civil and administrative tribunal (qcat) under section 309 of the residential tenancies and rooming accommodation act 2008.

Queensland Motor Vehicle Registration Transfer Form

Queensland Motor Vehicle Registration Transfer Form

There may be a number of grounds (reasons) for giving the notice. Web you may apply for termination of your lease through the queensland civil and administrative tribunal (qcat) under section 309 of the residential tenancies and rooming accommodation act 2008. Level 23, 179 turbot street | gpo box 390 brisbane q 4001 | t 1300 366 311 | rta.qld.gov.au.

Form 29 and 30 Sample Filled PDF Form 29 and Form 30

Form 29 and 30 Sample Filled PDF Form 29 and Form 30

Level 23, 179 turbot street | gpo box 390 brisbane q 4001 | t 1300 366 311 | rta.qld.gov.au. Level 23, 179 turbot street | gpo box 390 brisbane q 4001 | t 1300 366 311 | rta.qld.gov.au v14 apr20 Notice to end a tenancy must be in writing. Web you may apply for termination of your lease through the.

20182022 Ontario Form 13.1 Fill Online, Printable, Fillable, Blank

20182022 Ontario Form 13.1 Fill Online, Printable, Fillable, Blank

Go to 5 go to 6 residential tenancies and rooming accommodation act 2008 tenant/s. Web can access the rta’s dispute resolution service by lodging a dispute resolution request (form 16) with the rta. Level 23, 179 turbot street | gpo box 390 brisbane q 4001 | t 1300 366 311 | rta.qld.gov.au v14 apr20 Notice to end a tenancy must.

Rta Form 13 ≡ Fill Out Printable PDF Forms Online

Rta Form 13 ≡ Fill Out Printable PDF Forms Online

Web you may apply for termination of your lease through the queensland civil and administrative tribunal (qcat) under section 309 of the residential tenancies and rooming accommodation act 2008. There may be a number of grounds (reasons) for giving the notice. There may be a number of grounds (reasons) for giving the notice. Go to 5 go to 6 residential.

2014 AU RTA Form 11 Fill Online, Printable, Fillable, Blank pdfFiller

2014 AU RTA Form 11 Fill Online, Printable, Fillable, Blank pdfFiller

Notice to end a tenancy must be in writing. Level 23, 179 turbot street | gpo box 390 brisbane q 4001 | t 1300 366 311 | rta.qld.gov.au v14 apr20 Web can access the rta’s dispute resolution service by lodging a dispute resolution request (form 16) with the rta. There may be a number of grounds (reasons) for giving the.

Rta form 13 Fill out & sign online DocHub

Rta form 13 Fill out & sign online DocHub

Web 13 rows the notice of intention to leave (form 13) is used when the tenant/s are giving notice to the lessor/agent that they wish to vacate the premises by a certain date. There may be a number of grounds (reasons) for giving the notice. Level 23, 179 turbot street | gpo box 390 brisbane q 4001 | t 1300.

23 Printable Chapter 13 Claim Form Templates Fillable Samples In Pdf

23 Printable Chapter 13 Claim Form Templates Fillable Samples In Pdf

Web the notice of intention to leave (form 13) is used when the tenant/s are giving notice to the lessor/agent that they wish to vacate the premises by a certain date. Notice to end a tenancy must be in writing. There may be a number of grounds (reasons) for giving the notice. There may be a number of grounds (reasons).

Form 13 Financial Statement Family Court Form Topple this Domino

Form 13 Financial Statement Family Court Form Topple this Domino

Notice to end a tenancy must be in writing. There may be a number of grounds (reasons) for giving the notice. Go to 5 go to 6 residential tenancies and rooming accommodation act 2008 tenant/s. Level 23, 179 turbot street | gpo box 390 brisbane q 4001 | t 1300 366 311 | rta.qld.gov.au v14 apr20 A tenancy agreement is.

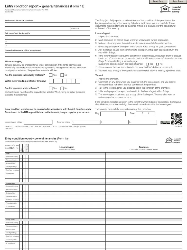
RTA Entry Condition Report Form Lease Bathroom

RTA Entry Condition Report Form Lease Bathroom

Web can access the rta’s dispute resolution service by lodging a dispute resolution request (form 16) with the rta. There may be a number of grounds (reasons) for giving the notice. Web you may apply for termination of your lease through the queensland civil and administrative tribunal (qcat) under section 309 of the residential tenancies and rooming accommodation act 2008..

Finding your Transport and Main Roads reference numbers Transport and

Finding your Transport and Main Roads reference numbers Transport and

Web the notice of intention to leave (form 13) is used when the tenant/s are giving notice to the lessor/agent that they wish to vacate the premises by a certain date. There may be a number of grounds (reasons) for giving the notice. Level 23, 179 turbot street | gpo box 390 brisbane q 4001 | t 1300 366 311.

There may be a number of grounds (reasons) for giving the notice. Level 23, 179 turbot street | gpo box 390 brisbane q 4001 | t 1300 366 311 | rta.qld.gov.au v14 apr20 Web 13 rows the notice of intention to leave (form 13) is used when the tenant/s are giving notice to the lessor/agent that they wish to vacate the premises by a certain date. Web can access the rta’s dispute resolution service by lodging a dispute resolution request (form 16) with the rta. Notice to end a tenancy must be in writing. Level 23, 179 turbot street | gpo box 390 brisbane q 4001 | t 1300 366 311 | rta.qld.gov.au. Go to 5 go to 6 residential tenancies and rooming accommodation act 2008 tenant/s. There may be a number of grounds (reasons) for giving the notice. Web the notice of intention to leave (form 13) is used when the tenant/s are giving notice to the lessor/agent that they wish to vacate the premises by a certain date. Web you may apply for termination of your lease through the queensland civil and administrative tribunal (qcat) under section 309 of the residential tenancies and rooming accommodation act 2008. A tenancy agreement is a legally binding contract that can only be ended in certain ways. There may be a number of grounds (reasons) for giving the notice.

Related Post: