What Is A Site Survey

What Is A Site Survey - Web site surveys are inspections of an area where work is proposed, to gather information for a design or an estimate to complete the initial tasks required for an. Web site survey is a term that is relevant in many different areas, and essentially includes site inspection within the preparatory phase of a project. For example, it is often used in construction projects to gather information for design. Web a site survey is a process of examining a location to collect data or information. Web what does site survey mean? A site survey is the examination of a location or spot in order to obtain data or information. Web a site survey, in its simplest definition, is a detailed inspection and assessment of a plot of land to gather information about its various features and.

Why Conducting a Wireless Site Survey is a Must

Why Conducting a Wireless Site Survey is a Must

Web a site survey is a process of examining a location to collect data or information. Web site surveys are inspections of an area where work is proposed, to gather information for a design or an estimate to complete the initial tasks required for an. Web site survey is a term that is relevant in many different areas, and essentially.

Do I Need to Hire a Land Surveyor or Can I Do It Myself?LandMark

Do I Need to Hire a Land Surveyor or Can I Do It Myself?LandMark

Web a site survey, in its simplest definition, is a detailed inspection and assessment of a plot of land to gather information about its various features and. For example, it is often used in construction projects to gather information for design. Web site survey is a term that is relevant in many different areas, and essentially includes site inspection within.

Do I Need a Land Survey?

Do I Need a Land Survey?

Web site survey is a term that is relevant in many different areas, and essentially includes site inspection within the preparatory phase of a project. Web site surveys are inspections of an area where work is proposed, to gather information for a design or an estimate to complete the initial tasks required for an. Web what does site survey mean?.

ALTA/NSPS Surveying Services Scalice Land Surveying

ALTA/NSPS Surveying Services Scalice Land Surveying

Web a site survey is a process of examining a location to collect data or information. Web site survey is a term that is relevant in many different areas, and essentially includes site inspection within the preparatory phase of a project. For example, it is often used in construction projects to gather information for design. Web a site survey, in.

How Much Does a Land Survey Cost in 2024? Checkatrade

How Much Does a Land Survey Cost in 2024? Checkatrade

Web a site survey is a process of examining a location to collect data or information. Web a site survey, in its simplest definition, is a detailed inspection and assessment of a plot of land to gather information about its various features and. A site survey is the examination of a location or spot in order to obtain data or.

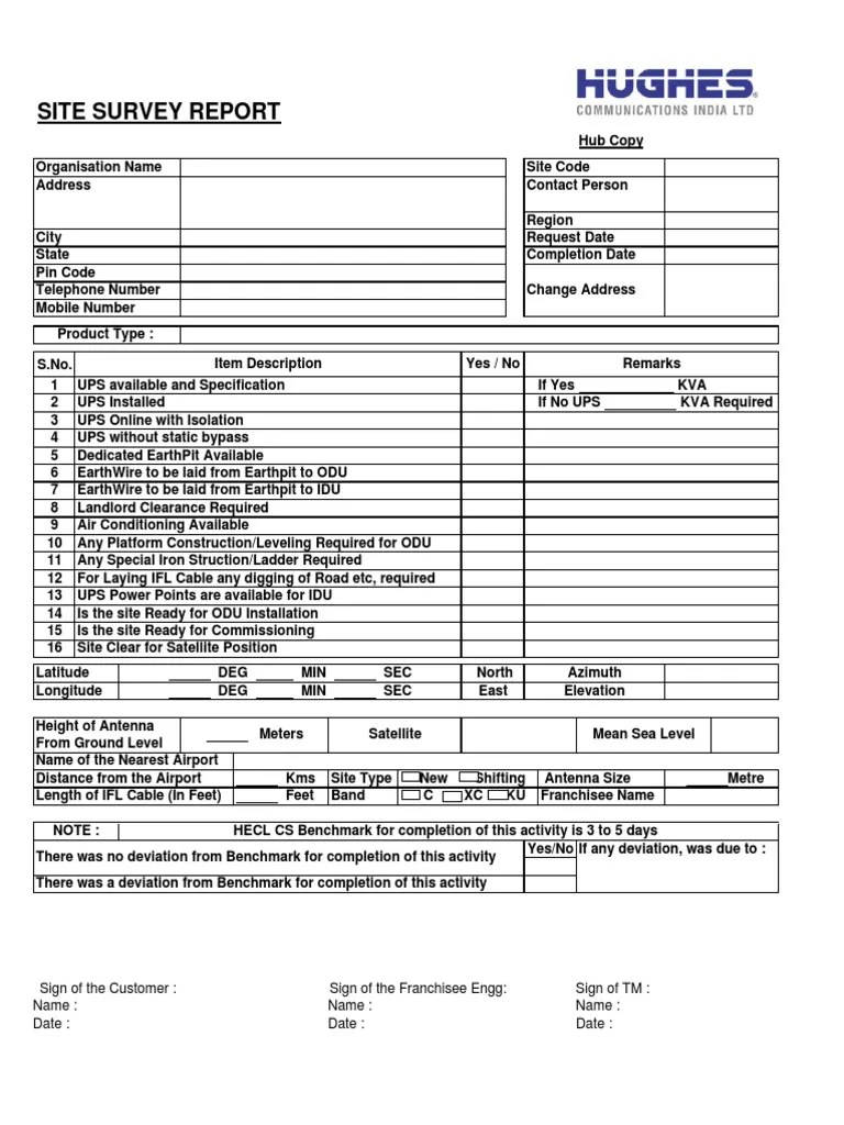
Site Survey Report Format Surveying Airport

Site Survey Report Format Surveying Airport

Web site survey is a term that is relevant in many different areas, and essentially includes site inspection within the preparatory phase of a project. A site survey is the examination of a location or spot in order to obtain data or information. Web a site survey is a process of examining a location to collect data or information. For.

FREE 9+ Sample Site Survey Templates in MS Word PDF

FREE 9+ Sample Site Survey Templates in MS Word PDF

Web a site survey is a process of examining a location to collect data or information. Web what does site survey mean? Web site survey is a term that is relevant in many different areas, and essentially includes site inspection within the preparatory phase of a project. Web a site survey, in its simplest definition, is a detailed inspection and.

Site Survey Checklist Industries

Site Survey Checklist Industries

Web a site survey, in its simplest definition, is a detailed inspection and assessment of a plot of land to gather information about its various features and. Web site survey is a term that is relevant in many different areas, and essentially includes site inspection within the preparatory phase of a project. For example, it is often used in construction.

Why Site Surveys Are So Important When Building

Why Site Surveys Are So Important When Building

Web what does site survey mean? For example, it is often used in construction projects to gather information for design. Web site survey is a term that is relevant in many different areas, and essentially includes site inspection within the preparatory phase of a project. Web a site survey is a process of examining a location to collect data or.

Types of Land Survey Services Which Do You Need? Landpoint

Types of Land Survey Services Which Do You Need? Landpoint

Web what does site survey mean? Web a site survey is a process of examining a location to collect data or information. Web a site survey, in its simplest definition, is a detailed inspection and assessment of a plot of land to gather information about its various features and. Web site surveys are inspections of an area where work is.

A site survey is the examination of a location or spot in order to obtain data or information. Web site surveys are inspections of an area where work is proposed, to gather information for a design or an estimate to complete the initial tasks required for an. Web what does site survey mean? For example, it is often used in construction projects to gather information for design. Web site survey is a term that is relevant in many different areas, and essentially includes site inspection within the preparatory phase of a project. Web a site survey, in its simplest definition, is a detailed inspection and assessment of a plot of land to gather information about its various features and. Web a site survey is a process of examining a location to collect data or information.

Related Post: